We know you have questions, so here are the ones most commonly asked. Click on a question below to scroll to the answer.

What are your rental fees?

What is your maximum capacity?

By what time do we have to end our reception?

What are the dimensions of the Barn?

Is there a fire pit?

Can we grill?

Do you have any recommendations on where we should rent chairs?

Can we set up party tents for outdoor seating?

Is there anyone you could recommend to make our cake?

Is there anyone you could recommend for event insurance?


What are your rental fees?

Please see our venue page for more information regarding our fees and what is included.

What is your maximum capacity?

The maximum capacity for inside the Barn is 150 people. However, if you wish to have a larger wedding, you are more than welcome to rent tents and have some people sit outdoors.

By what time do we have to end our reception?

Brown County has a noise ordinance in effect that requires all electronic sound amplification devices (aka speakers) to be turned off by 10 pm, so your reception would have to end by that time.

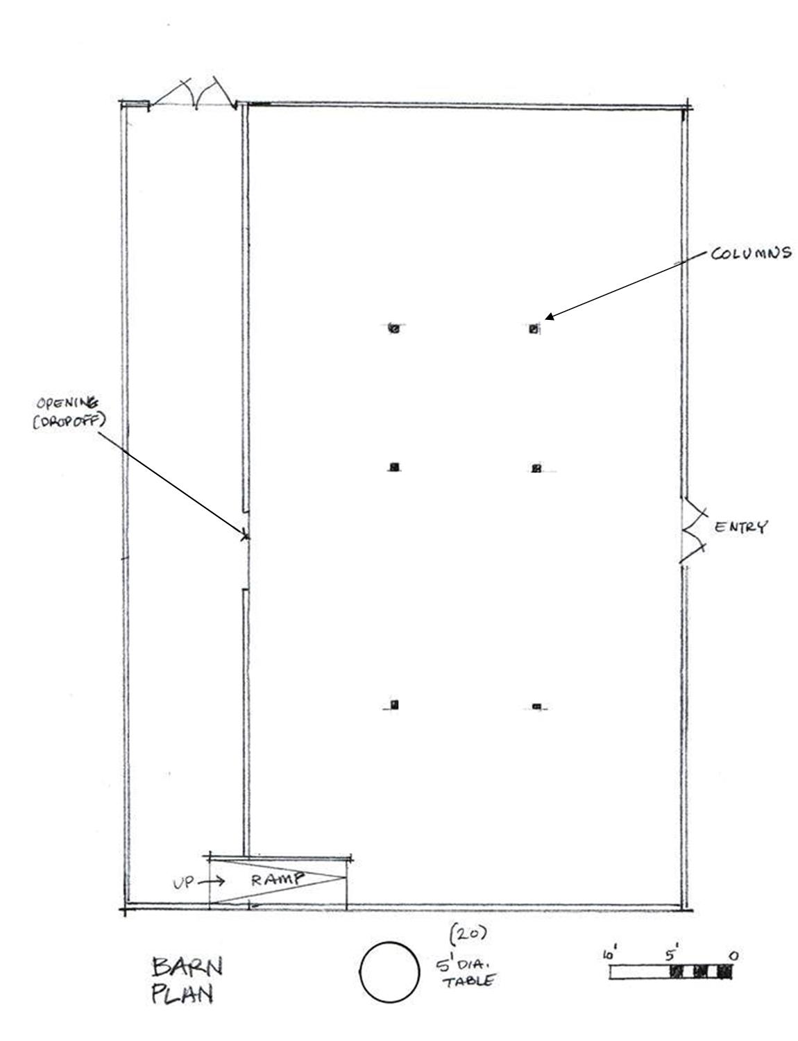
What are the dimensions of the Barn?

The main floor of The Barn is approximately 38’ x 64’ with a ramp at the north end leading to a concrete walkway running behind the main floor. 6 columns help to break up the area. Here is our layout.

Is there a fire pit?

Yes. We have a fire pit located behind the Carriage House.

Can we grill?

Yes. There is a charcoal grill available at Heritage House for guest use.

Do you have any recommendations on where we should rent chairs?

We have a good relationship with Seward Party Rentals. They are well acquainted with our procedures, so we have a system worked out with them.

Can we set up party tents for outdoor seating?

Yes. Sewards is also a great place to rent tents if you need one.

Is there anyone you could recommend to make our cake?

Icing on the Cake by Kristina is our favorite. She does everything from cupcakes to fondant-covered masterpieces. Her buttercream is to die for!

Is there anyone you could recommend for event insurance?

Your personal insurance agent should be able to get you a quote for a policy.